
ただの展示用ではなく、実際の暮らしを考えて建てた家
この4棟は、単なる見せるためのモデルハウスではありません。
家事動線
収納計画
採光や風通し
家族の距離感
すべて「実際に住むこと」を前提に設計されています。
スタッフも、お客様も、何度もこの家の中で打ち合わせをし、
たくさんのご家族の夢を形にしてきました。
販売中モデルハウス




ステージ24

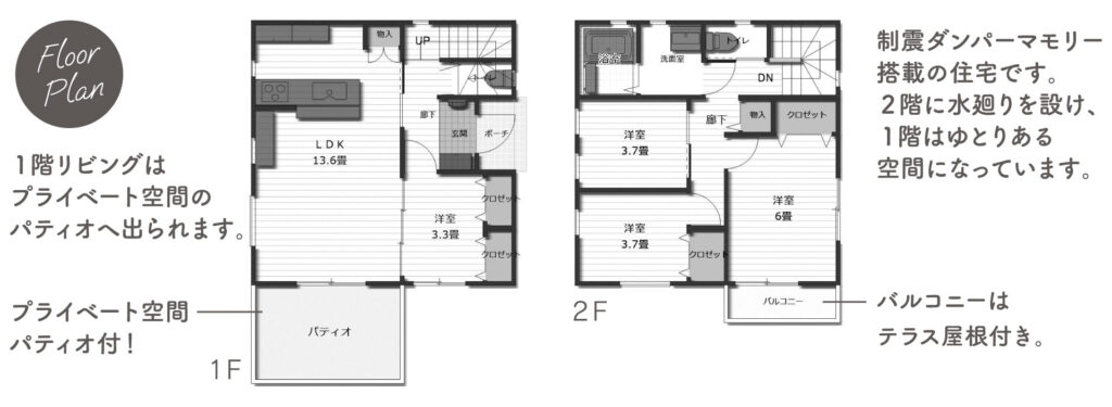
ステージ24は洗面、お風呂は2階という新常識から生れた規格住宅。1階リビングはプライベート空間のパティオへ出られます。制震ダンパーマモリー搭載の住宅です。2回に水廻りを設け、1階はゆとりのある空間となっています。










集いの家

集いの家は大家族でも充分ゆとりがある吹き抜けで開放感ある家。LDKは吹き抜けがあり天井が高く広々空間を演出しています。また、2階にプライベートシャワー室と洗面室があります。外壁は一部タイル張りで重厚感があります。制振装置MIRAIE搭載!










大空間の家

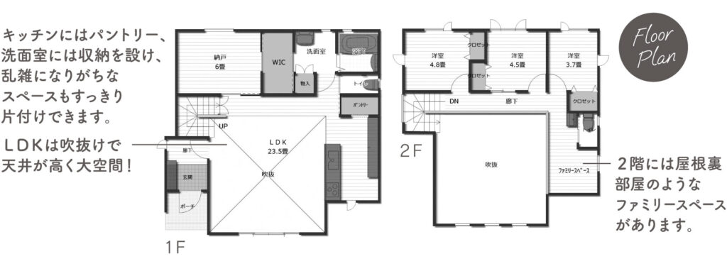
大空間の家は家族の顔が見える家、家族の声が届く家です。キッチンにはパントリー、洗面室には収納を設け、乱雑になりがちなスペースもすっきり片付けできます。LDKは吹き抜けで大空間!また、2階には屋根裏部屋のようなファミリースペースがあります。










ステージ28

ステージ24は洗面、お風呂は2階という新常識から生れた規格住宅。1階リビングはプライベート空間のパティオへ出られます。制震ダンパーマモリー搭載の住宅です。2回に水廻りを設け、1階はゆとりのある空間となっています。









