建物に伝わる揺れを吸収して抑える制震構造、更にピッキング対策の選択肢として広く使われるカードキー採用だから、セキュリティ面でも安心です。また初めての入居者様をお待ちしている新築の住戸で、その上落ち着いた暮らしが始められる閑静な住宅街の物件なので、落ち着きのある環境が暮らしを支えます。ちなみに簡単な運動や趣味にもお使い頂ける10坪以上の庭付です。家族みんなのワガママにも応える4LDK。ご案内いたしますのでお気軽にご連絡ください。
BELS/省エネ基準適合認定
断熱性能:5段階/7段階中
目安光熱費:約16.1万円/年
| 新築一戸建て | |||
| 価格 | 2,980万円 | ||
|---|---|---|---|
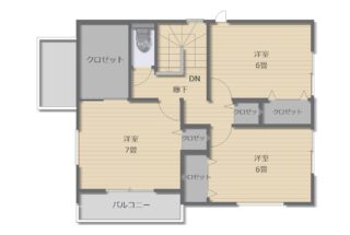
| 間取り | 4LDK | ||
|---|---|---|---|
| 間取内訳 | 和室3帖・洋室6帖・6帖・7帖 LDK16帖 | ||
| 構造 | 木造 | 階建 | 2階建 |
| 建物面積 | 102.68㎡ | 駐車場 | 3台以上 |
| 土地面積 | 実測 234.29㎡ | 土地権利 | 所有権 |
| 私道面積 | ㎡ | 共有持分 | |
| 新築年月 | 2025年10月 新築 | 建築確認番号 | R070268 |
| 現状 | 完成済 | 引渡日 | 即時 |
| 仕様 | |||
|
|||
| 所 在 地 | 豊後大野市三重町秋葉 48-1 | ||
|---|---|---|---|
| 交 通 | JR豊肥本線 三重町 徒歩17分 | ||
| 都市計画 | 市街化区域 | 用途地域 | 第一種住居地域 |
| 土地面積 | 実測 234.29㎡ | 土地権利 | 所有権 |
| 建ぺい率 | 60% | 容 積 率 | 200% |
| 地 目 | 雑種地 | 地 勢 | 平坦 |
| 接道状況 | 西側幅員11.0m 公道に12.2m接道 | ||
| 法令制限 | |||
| 取引形態 | 売主 | ||
| 備 考 | |||
|---|---|---|---|









